U gebruikt een verouderde internetbrowser.
We raden u aan om de meest recente internetbrowser te installeren voor de beste weergave van deze website.
Een internetbrowser die up to date is, staat ook garant voor veilig surfen.

Villa / praktijk / BenB/ kamerwonen /... - Koolmijnlaan 11, Houthalen - perceel 2.700 m².

€ 690 000 Houthalen-Helchteren
Koolmijnlaan 11
Goed gelegen kortbij de autostrade (1,2 km), op een perceel van 2.700 m² . Tegenover de Lidl.
In een semi-commerciële residentiële omgeving.
Voor dit pand zijn functies zoals een woning, B&B, kamerwonen of een restaurant zeker een mogelijkheid. Echter dienen deze functies wel voorzien te worden binnen de bestaande structuur, een afbraak van de woning is niet mogelijk. Appartementsbouw is hier ook niet van toepassing. Bijbouwen aan het bestaande pand kan eventueel wel indien het beperkt blijft, maar ook hier moet de Gemeente over beslissen.

Aan de straatkant zijn 2 opritten (hekwerk) en een hoge haag.
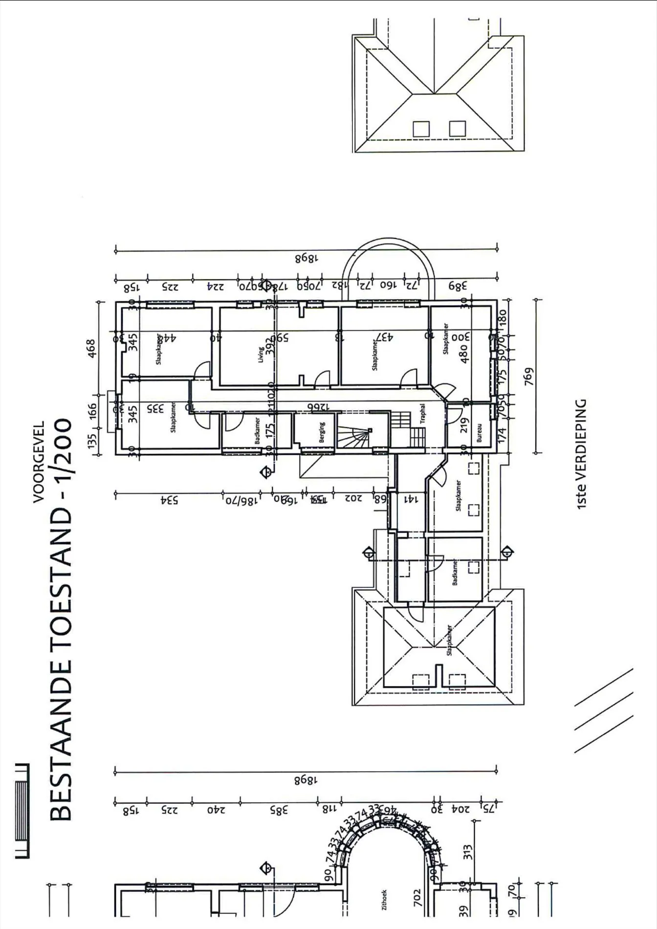
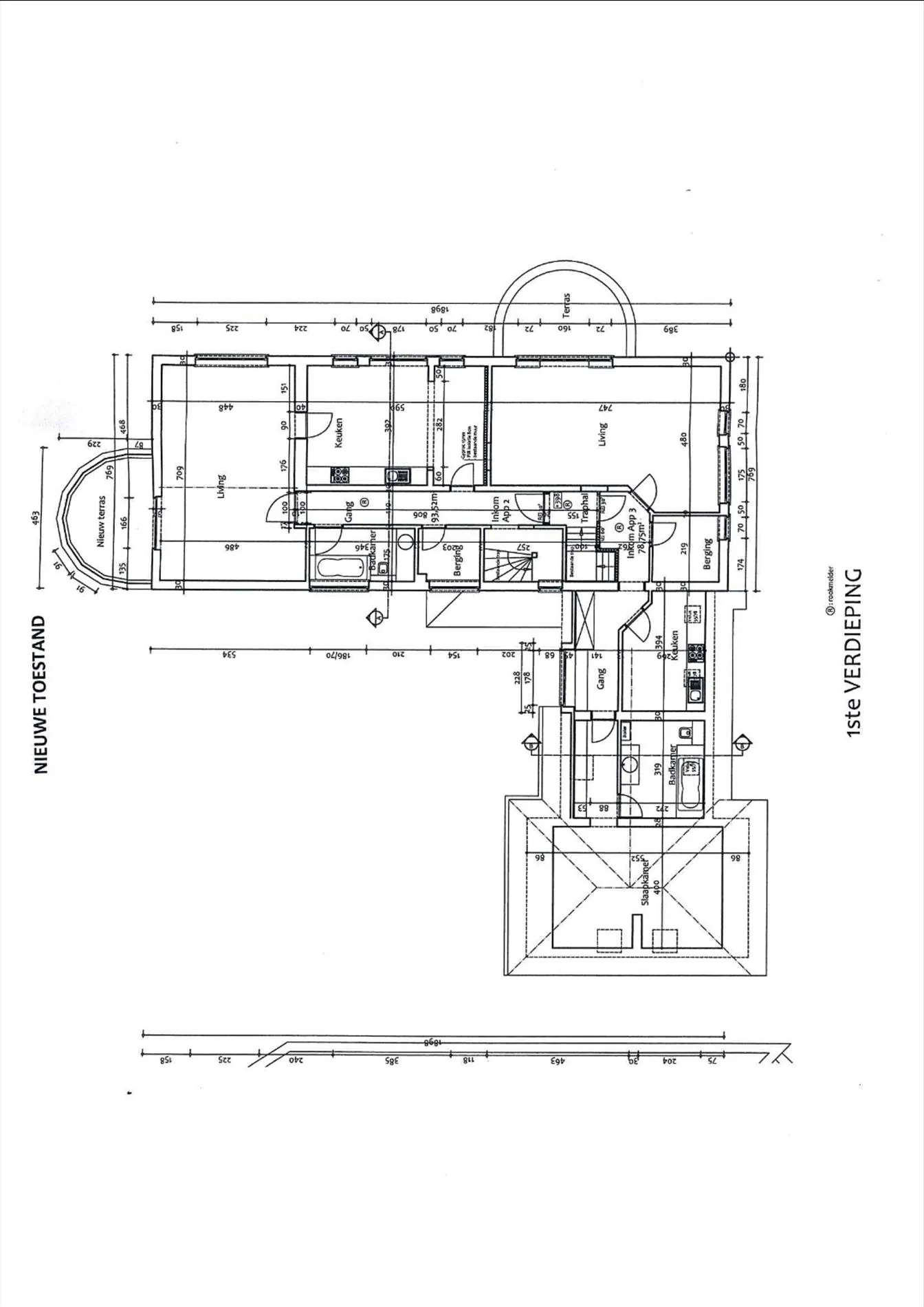
Bouwjaar 1956 . De villa zelf meet 20,70 m breedte. Het gebouw heeft een L-vorm. Diepte 18,98 m.
Metselwerk in handvorm gevelsteen. Sterke constructie met beton tussenvloeren.
Bebouwde oppervlakte : ca 243 m². De oppervlakten van de verdiepingen : gelijkvloers 243 m². 1e verdieping : 225 m². 2de verdieping : 85 m². De kelder is ook 240 m².
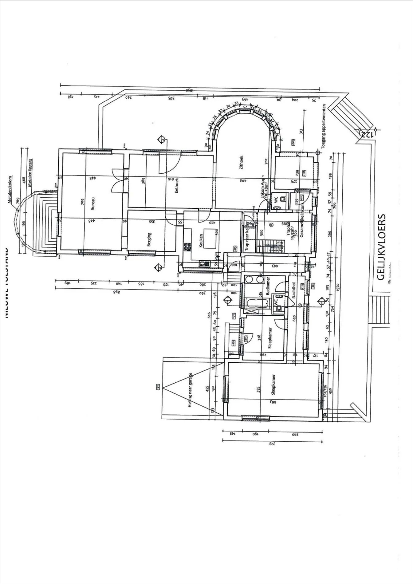
Gelijkvloers zijn o.a. 2 woonkamers en 1 eetkamer.
Centrale verwarming op gas en ... pelletkachels. De woonkamers hebben vloerverwarming.
De villa is vernieuwd in 2019. Het dak is van 2019. Nieuwe ramen (PVC- binnen wit en buitenkant antraciet, ingewerkte kruisverdeling), nieuwe vloeren en badkamers, 2 nieuwe keukens. Er zijn 5 inkomdeuren.
De vloeren zijn keramische vloeren (1,20 m x 1,20 m) en natuursteen vloeren. In 1 woonkamer is keramische tegel en een tapijt in tegels (1,20 m x 1,20 m). Er zijn 4 tegeltapijten in de woning.
Meerdere terrassen en grote tuin (kersenboom, appelboom). Mogelijkheid voor zwembad
Volledig in woongebied gelegen.
Naast het huidige gebruik als 1 woning is er volgens de Gemeente mogelijkheid voor opdeling in meerdere woonentiteiten (aan te vragen).

Zie bij foto's en bij plannen de nieuwe toestand. Goedkeuring van stedenbouw is steeds nodig.
De bushalte is op 60 m en de autostrade A2 op 2,7 km en de E314 op 12,8 km.

Voorzieningen - Binnen een straal van 1 km : Boodschappen – medisch – banken :
4 Supermarkten (waaronder Aldi, Lidl, Wekelijkse Markt Houthalen, Hema) – 1 Bakker -1 slager –
15 Restaurants (waaronder McDonald's, Quick, Brasserie Fratelli, 't Flensje, Il Carpaccio, Santi Food Bar, Innesto, McDrive, The Square, La Tapa De Oro)
1 Apotheek - 6 Dokters (waaronder May Arnaot, Erik Bortels, Marina Essers, Paul Hanssen, Hugo Vanbuel, Isabelle Vanderheyden)
2 Banken (waaronder Belfius, BNP Paribas Fortis )

GELIJKVLOERS (plafondhoogte: 2,60 m)
- Inkom: tegelvloer
- Inkomhal - trappenhal: (3,00 m x 3,99 m = 11,97 m²)- tegelvloer
- 2de inkom - vestiaire
- Keuken : (4,30 m x 3,00 m = 12,90 m²) – tegelvloer – granieten werkblad - de keuken is volledig ingericht met vaatwasser en spoeltafel, fornuis AEG inductie en Amerikaanse koelkast
- Bijkeuken: (3,00 m x 3,55 m = 10,65 m²) - tegelvloer
- TV-hoek / Eetkamer: (7,09 m x 4,48 m = 31,76 m²) - tegelvloer
- Woonkamer met zithoek en eethoek: (10,19 m x 7,02 m / 3,89 m = 50 m²) - terras
- Toilet
- Badkamer : (2,99 m x 2,81 m = 8,40 m²) – granieten vloer en marmer wandtegels – ingericht met hoekbad, badmeubel - douche
- Toilet
- Woonkamer – voorheen dokterspraktijk: (6,63 m x 3,95 m = 26,19 m²) – tegelvloer
- 2de Keuken : (2,02 m x 2,9 m = 6,01 m²) – tegelvloer – ingericht

EERSTE VERDIEPING (plafondhoogte: 2,45 m) – 6 slaapkamers – woonkamer – 2 badkamers -toilet
- Nachthal
- Berging
- Badkamer: (1,75 m x 3,30 m = 5,78 m²)
- Slaapkamer 1: (3,55 m x 3,45 m = 12,25 m²)
- Slaapkamer 2: (4,48 m x 3,45 m = 15,46 m²)
- Living: (3,92 m x 5,90 m = 23,13 m²)
- Slaapkamer 3: (3,92 m x 4,37 m = 10,28 m²) – balkon naar de straatkant
- Slaapkamer 4: (3,00 m x 4,80 m = 14,40 m²)
- Bureel: (2,19 m x 2,19 m = 4,80 m²)
- Slaapkamer 5: (4,00 m x 2,60 m = 10,40 m²)
- Badkamer: (3,15 m x 2,60 m = 8,19 m²) – ingericht met ijving + bad, douche etc.
- Slaapkamer 6: (4,00 m x 5,50 m = 22 m²)

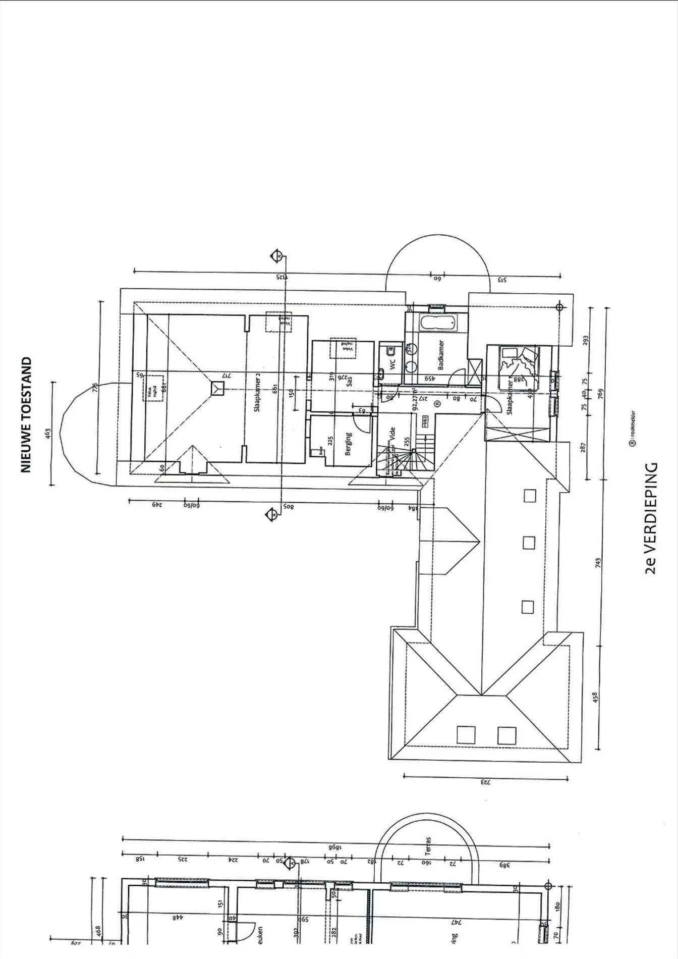
TWEEDE VERDIEPING (plafondhoogte: 2,25 m) – hal – 2 slaapkamers – zithoek – toilet - badkamer
- Ruime Nachthal: (4,59 m x 4,54 m = 20,84 m²)
- Slaapkamer 7 met zithoek: (6,61 m x 7,17 m = 44,17 m²)
- Slaapkamer 8: (4,30 m x 2,88 m = 12,38 m²)
- Toilet
- Badkamer

KELDER (plafondhoogte: 1,80 m hoog)
- Kelder onder heel de woning
- Toegang met binnentrap en langs garagepoort
- Bergkelders
- Wasplaats – voorraadkelder – technische ruimte

TUIN :
- Voortuin en achtertuin

TERRAS
- Terrassen rondom

BIJGEBOUW

GARAGE
- Inpandige garage met beperkte toegang wegens beperkte hoogte van de huidige toegang

Wij kunnen geen garantie geven over de juistheid van de gegevens en afmetingen.
Lees meer Verberg
2.700 m²
541 m²
4
9

Villa / praktijk / BenB/ kamerwonen /... - Koolmijnlaan 11, Houthalen - perceel 2.700 m².

Villa / praktijk / BenB/ kamerwonen /... - Koolmijnlaan 11, Houthalen - perceel 2.700 m².

€ 690 000 Houthalen-Helchteren
Koolmijnlaan 11
Goed gelegen kortbij de autostrade (1,2 km), op een perceel van 2.700 m² . Tegenover de Lidl.
In een semi-commerciële residentiële omgeving.
Voor dit pand zijn functies zoals een woning, B&B, kamerwonen of een restaurant zeker een mogelijkheid. Echter dienen deze functies wel voorzien te worden binnen de bestaande structuur, een afbraak van de woning is niet mogelijk. Appartementsbouw is hier ook niet van toepassing. Bijbouwen aan het bestaande pand kan eventueel wel indien het beperkt blijft, maar ook hier moet de Gemeente over beslissen.

Aan de straatkant zijn 2 opritten (hekwerk) en een hoge haag.
Bouwjaar 1956 . De villa zelf meet 20,70 m breedte. Het gebouw heeft een L-vorm. Diepte 18,98 m.
Metselwerk in handvorm gevelsteen. Sterke constructie met beton tussenvloeren.
Bebouwde oppervlakte : ca 243 m². De oppervlakten van de verdiepingen : gelijkvloers 243 m². 1e verdieping : 225 m². 2de verdieping : 85 m². De kelder is ook 240 m².
Gelijkvloers zijn o.a. 2 woonkamers en 1 eetkamer.
Centrale verwarming op gas en ... pelletkachels. De woonkamers hebben vloerverwarming.
De villa is vernieuwd in 2019. Het dak is van 2019. Nieuwe ramen (PVC- binnen wit en buitenkant antraciet, ingewerkte kruisverdeling), nieuwe vloeren en badkamers, 2 nieuwe keukens. Er zijn 5 inkomdeuren.
De vloeren zijn keramische vloeren (1,20 m x 1,20 m) en natuursteen vloeren. In 1 woonkamer is keramische tegel en een tapijt in tegels (1,20 m x 1,20 m). Er zijn 4 tegeltapijten in de woning.
Meerdere terrassen en grote tuin (kersenboom, appelboom). Mogelijkheid voor zwembad
Volledig in woongebied gelegen.
Naast het huidige gebruik als 1 woning is er volgens de Gemeente mogelijkheid voor opdeling in meerdere woonentiteiten (aan te vragen).

Zie bij foto's en bij plannen de nieuwe toestand. Goedkeuring van stedenbouw is steeds nodig.
De bushalte is op 60 m en de autostrade A2 op 2,7 km en de E314 op 12,8 km.

Voorzieningen - Binnen een straal van 1 km : Boodschappen – medisch – banken :
4 Supermarkten (waaronder Aldi, Lidl, Wekelijkse Markt Houthalen, Hema) – 1 Bakker -1 slager –
15 Restaurants (waaronder McDonald's, Quick, Brasserie Fratelli, 't Flensje, Il Carpaccio, Santi Food Bar, Innesto, McDrive, The Square, La Tapa De Oro)
1 Apotheek - 6 Dokters (waaronder May Arnaot, Erik Bortels, Marina Essers, Paul Hanssen, Hugo Vanbuel, Isabelle Vanderheyden)
2 Banken (waaronder Belfius, BNP Paribas Fortis )

GELIJKVLOERS (plafondhoogte: 2,60 m)
- Inkom: tegelvloer
- Inkomhal - trappenhal: (3,00 m x 3,99 m = 11,97 m²)- tegelvloer
- 2de inkom - vestiaire
- Keuken : (4,30 m x 3,00 m = 12,90 m²) – tegelvloer – granieten werkblad - de keuken is volledig ingericht met vaatwasser en spoeltafel, fornuis AEG inductie en Amerikaanse koelkast
- Bijkeuken: (3,00 m x 3,55 m = 10,65 m²) - tegelvloer
- TV-hoek / Eetkamer: (7,09 m x 4,48 m = 31,76 m²) - tegelvloer
- Woonkamer met zithoek en eethoek: (10,19 m x 7,02 m / 3,89 m = 50 m²) - terras
- Toilet
- Badkamer : (2,99 m x 2,81 m = 8,40 m²) – granieten vloer en marmer wandtegels – ingericht met hoekbad, badmeubel - douche
- Toilet
- Woonkamer – voorheen dokterspraktijk: (6,63 m x 3,95 m = 26,19 m²) – tegelvloer
- 2de Keuken : (2,02 m x 2,9 m = 6,01 m²) – tegelvloer – ingericht

EERSTE VERDIEPING (plafondhoogte: 2,45 m) – 6 slaapkamers – woonkamer – 2 badkamers -toilet
- Nachthal
- Berging
- Badkamer: (1,75 m x 3,30 m = 5,78 m²)
- Slaapkamer 1: (3,55 m x 3,45 m = 12,25 m²)
- Slaapkamer 2: (4,48 m x 3,45 m = 15,46 m²)
- Living: (3,92 m x 5,90 m = 23,13 m²)
- Slaapkamer 3: (3,92 m x 4,37 m = 10,28 m²) – balkon naar de straatkant
- Slaapkamer 4: (3,00 m x 4,80 m = 14,40 m²)
- Bureel: (2,19 m x 2,19 m = 4,80 m²)
- Slaapkamer 5: (4,00 m x 2,60 m = 10,40 m²)
- Badkamer: (3,15 m x 2,60 m = 8,19 m²) – ingericht met ijving + bad, douche etc.
- Slaapkamer 6: (4,00 m x 5,50 m = 22 m²)

TWEEDE VERDIEPING (plafondhoogte: 2,25 m) – hal – 2 slaapkamers – zithoek – toilet - badkamer
- Ruime Nachthal: (4,59 m x 4,54 m = 20,84 m²)
- Slaapkamer 7 met zithoek: (6,61 m x 7,17 m = 44,17 m²)
- Slaapkamer 8: (4,30 m x 2,88 m = 12,38 m²)
- Toilet
- Badkamer

KELDER (plafondhoogte: 1,80 m hoog)
- Kelder onder heel de woning
- Toegang met binnentrap en langs garagepoort
- Bergkelders
- Wasplaats – voorraadkelder – technische ruimte

TUIN :
- Voortuin en achtertuin

TERRAS
- Terrassen rondom

BIJGEBOUW

GARAGE
- Inpandige garage met beperkte toegang wegens beperkte hoogte van de huidige toegang

Wij kunnen geen garantie geven over de juistheid van de gegevens en afmetingen.
Lees meer Verberg
Adres:Koolmijnlaan 11
Houthalen-Helchteren
Referentie:8811
Vraagprijs:€ 690.000
Type:Woning
Beschikbaar vanaf:Bij akte
Perceeloppervlakte:2.700 m²
Perceelbreedte:46,59 m
Perceeldiepte:56 m
Bebouwde opp.:243 m²
Bewoonbare opp.:541 m²
Type constructie:Traditioneel
Bouwjaar:1956
Renovatiejaar:2019
Gevelbreedte:19,7 m
Bouwlagen:2
Algemene staat:Normaal
Slaapkamers:9
Badkamers:4
Woonkamer:Ja
Keuken:Ja
Kelder:200 m²
Terras:Ja
Tuin:Ja
Tuin kwaliteit:Normaal
Garage:1 plaats
Parking:20
Parking Types:Privé
Comfort:Fitnessruimte, Tuin
Snelweg:Ja - op 1000 m tot 1500 m
Bushalte:Ja - op minder dan 500 m
Winkel:Ja - op minder dan 500 m
School:Ja - op minder dan 500 m
Kinderopvang:Ja - op minder dan 500 m
Bank:Ja - op minder dan 500 m
Ontspanning:Ja - op minder dan 500 m
Restaurant:Ja - op minder dan 500 m
Raamwerk:PVC
Dak:Zadeldak - Nieuw dak 2019 - gebakken dakpannen op houten draagconstructie
Gevel:Handvormsteen
Fundering:Kelder - Volledig kelderverdiep - inrit op achtergevel
Beglazing:Dubbel
Verwarming:CV-ketel, Pelletkachel, Andere - CV ketel op propaangas - aardgas ligt al in de kelder
Verwarmd water:Gas - Propaangas
Internet:Ja
Kabel:Ja

Vraag meer info aan


U moet akkoord gaan met het privacybeleid van deze website
* Verplicht in te vullen
** Eén van deze velden is verplicht in te vullen

Niet gevonden wat u zocht?

Het creatieve Lumaro Vastgoed-team vindt zeker wat u zoekt.
Schrijf u in