U gebruikt een verouderde internetbrowser.
We raden u aan om de meest recente internetbrowser te installeren voor de beste weergave van deze website.
Een internetbrowser die up to date is, staat ook garant voor veilig surfen.

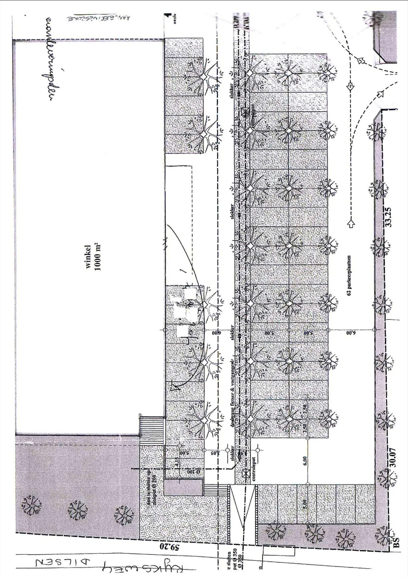
Rijksweg: Commercieel goed gelegen handelspand (ca 1.100 m²) met private parking (60 pl.) en gem. parking (72 pl).

€ 1 750 000 Dilsen-Stokkem
Oude-Kerkstraat 3
Centraal gelegen in Dilsen, BLIKVANGER langs de Rijksweg. Voorheen de LIDL, en de X Market.
Naastliggende winkels zijn Kruidvat en Zeeman.
Gelegen aan het KRUISPUNT van Dilsen.
Super zichtlocatie langs de doorgaande weg.
Toegang parking langs de Oude Kerkstraat 3.
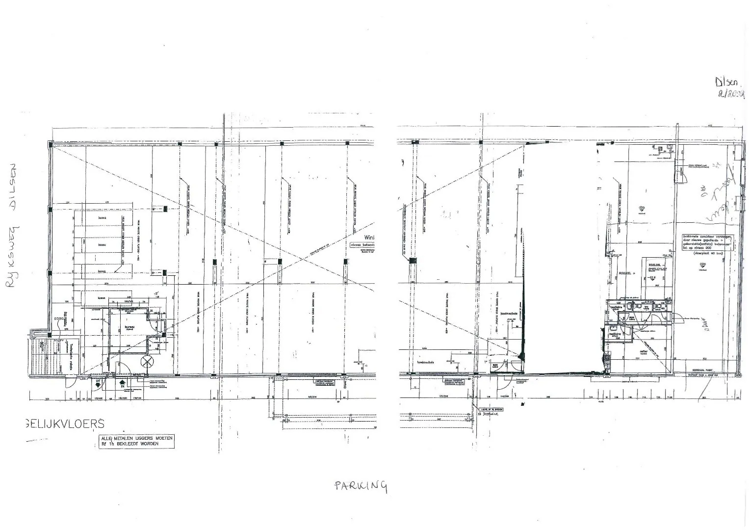
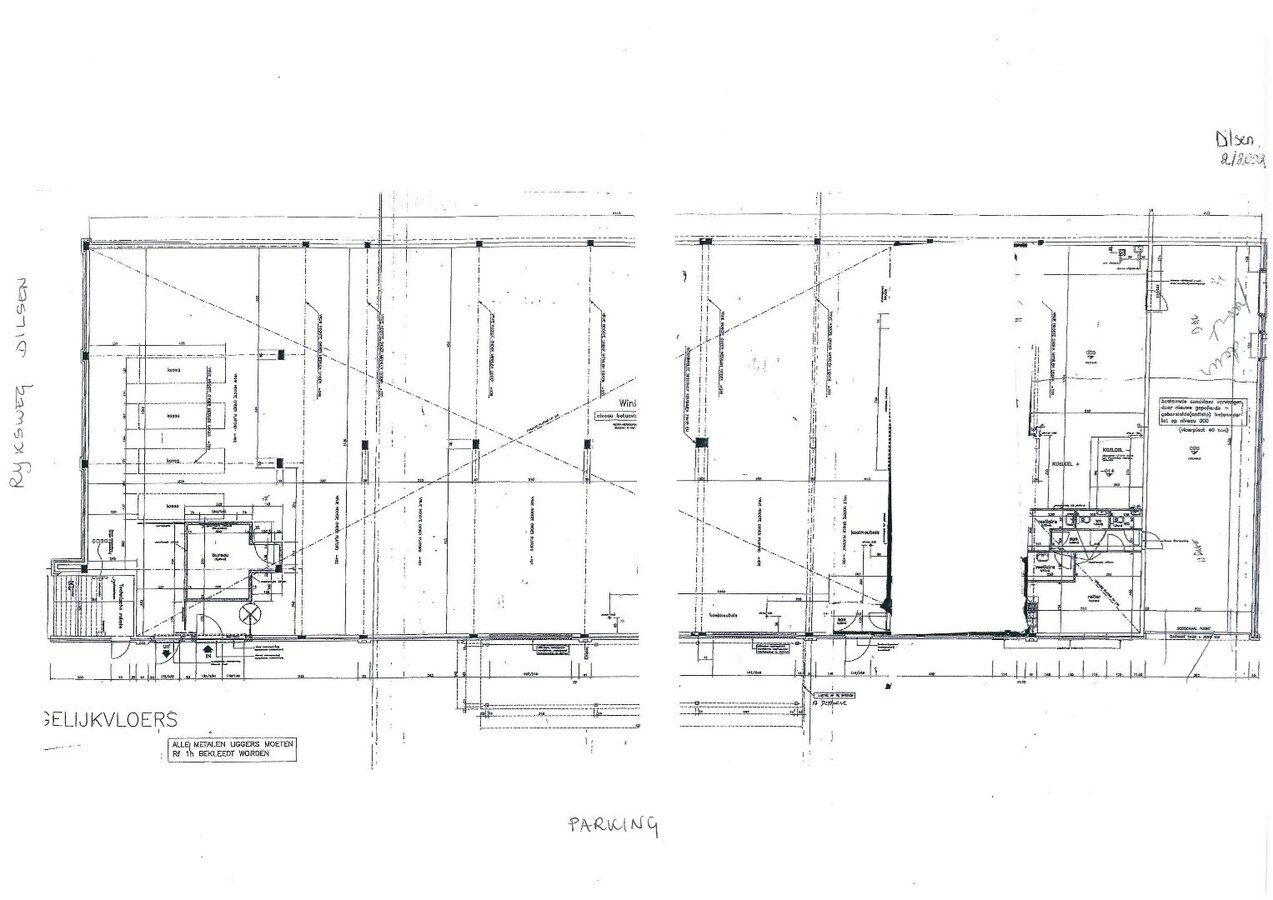
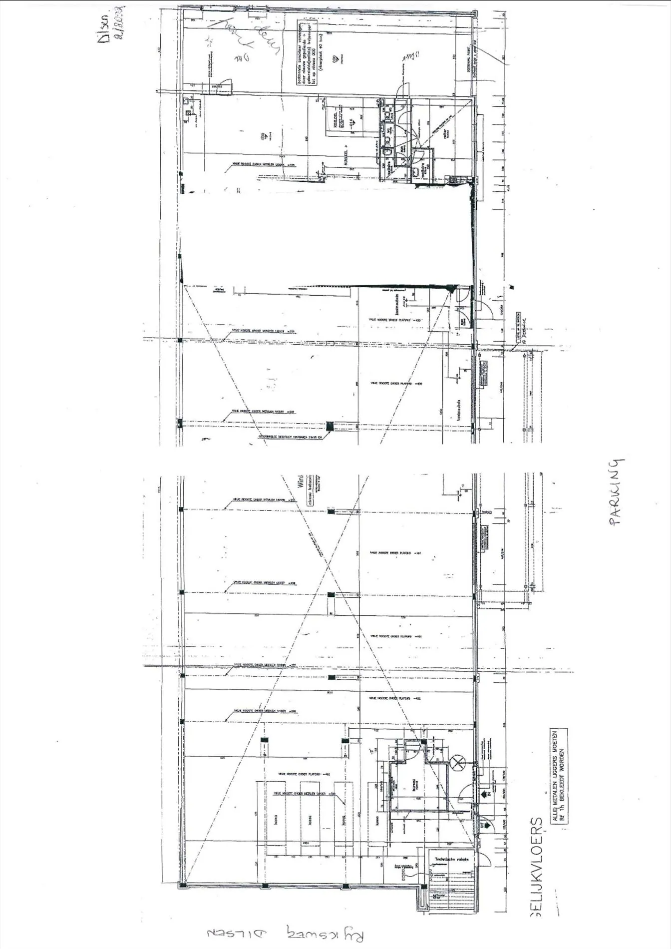
Commerciële ruimte, opslag, sanitair, keuken. Volledig gelijkvloers.
2 sectionale poorten voor toelevering; afmetingen bij benadering;
-1 sectionale poort van 2,76 m breed x 2,99 m hoog
-1 sectionale poort van 2,11 m breed x 2,43 m hoog
Oppervlakte ca 1.100 m² = ca 51 m x 19 m
Parkeerterrein aan het pand – 62 parkeerplaatsen. 107 parkings op de site.
Elektriciteit : 125 kVA ! Het plafond is nu een systeemplafond.
EPC Niet-residentiële eenheid ( 14-10-2025) . Energielabel : onbepaald X.. Energiescore 479.

Interessant pand. Moet gezien worden! Alle afmetingen zijn bij benadering.

VOLLEDIG GELIJKVLOERS (plafondhoogte: 2,97 m / 3,97 m)
- Handelsruimte: (47,00 m x 19,25 m = 905 m²) + (14,37 m x 4,76 m = 68,40 m) = 970 m² - tegelvloer ...
- Voorraad / werkruimte: (13,00 m x 5,63 m = 73,19 m²) hoogte 3,97 m – tegelvloer
- Voorraad / werkruimte: (19,21 m x 5,22 m = 100,28 m²) – betonvloer – nooduitgang – 1 sectionale poort (2,76 m breed x 2,99 m hoog) en 1 sectionale poort (2,11 m breed x 2,43 m hoog)
- Kleedruimten, sanitaire ruimte,…. …
- Keuken: (5,54 m x 4,20 m / 2,60 m) – tegelvloer – venster

PARKING
- eigen parkeerterrein aan de deur - 60 private plaatsen en gemeenschappelijke parking met 72 plaatsen
Wij kunnen geen garantie geven over de juistheid van de gegevens en afmetingen.
Lees meer Verberg
1.203 m²
1.203 m²

Rijksweg: Commercieel goed gelegen handelspand (ca 1.100 m²) met private parking (60 pl.) en gem. parking (72 pl).

Rijksweg: Commercieel goed gelegen handelspand (ca 1.100 m²) met private parking (60 pl.) en gem. parking (72 pl).

€ 1 750 000 Dilsen-Stokkem
Oude-Kerkstraat 3
Centraal gelegen in Dilsen, BLIKVANGER langs de Rijksweg. Voorheen de LIDL, en de X Market.
Naastliggende winkels zijn Kruidvat en Zeeman.
Gelegen aan het KRUISPUNT van Dilsen.
Super zichtlocatie langs de doorgaande weg.
Toegang parking langs de Oude Kerkstraat 3.
Commerciële ruimte, opslag, sanitair, keuken. Volledig gelijkvloers.
2 sectionale poorten voor toelevering; afmetingen bij benadering;
-1 sectionale poort van 2,76 m breed x 2,99 m hoog
-1 sectionale poort van 2,11 m breed x 2,43 m hoog
Oppervlakte ca 1.100 m² = ca 51 m x 19 m
Parkeerterrein aan het pand – 62 parkeerplaatsen. 107 parkings op de site.
Elektriciteit : 125 kVA ! Het plafond is nu een systeemplafond.
EPC Niet-residentiële eenheid ( 14-10-2025) . Energielabel : onbepaald X.. Energiescore 479.

Interessant pand. Moet gezien worden! Alle afmetingen zijn bij benadering.

VOLLEDIG GELIJKVLOERS (plafondhoogte: 2,97 m / 3,97 m)
- Handelsruimte: (47,00 m x 19,25 m = 905 m²) + (14,37 m x 4,76 m = 68,40 m) = 970 m² - tegelvloer ...
- Voorraad / werkruimte: (13,00 m x 5,63 m = 73,19 m²) hoogte 3,97 m – tegelvloer
- Voorraad / werkruimte: (19,21 m x 5,22 m = 100,28 m²) – betonvloer – nooduitgang – 1 sectionale poort (2,76 m breed x 2,99 m hoog) en 1 sectionale poort (2,11 m breed x 2,43 m hoog)
- Kleedruimten, sanitaire ruimte,…. …
- Keuken: (5,54 m x 4,20 m / 2,60 m) – tegelvloer – venster

PARKING
- eigen parkeerterrein aan de deur - 60 private plaatsen en gemeenschappelijke parking met 72 plaatsen
Wij kunnen geen garantie geven over de juistheid van de gegevens en afmetingen.
Lees meer Verberg
Adres:Oude-Kerkstraat 3
Dilsen-Stokkem
Referentie:9040
Vraagprijs:€ 1.750.000
Type:Commerciële winkel
Beschikbaar vanaf:Bij akte
Bebouwde opp.:1.203 m²
Bouwjaar:2001
Bouwlagen:1
Op verdieping:0
Algemene staat:Normaal
Verhuurbare vloeroppervlakte:1 203 m²
Bouwhoogte:3 m
WC:Ja
Keuken:Ja
Opslagruimte:Ja
Showroom:Ja
Kantine:Ja
Productieruimte:Ja
Busknooppunt:Ja - op minder dan 500 m
Bushalte:Ja - op minder dan 500 m
Winkel:Ja - op minder dan 500 m
School:Ja - op minder dan 500 m
Kinderopvang:Ja - op minder dan 500 m
Bank:Ja - op minder dan 500 m
(Stads)centrum:Ja - op minder dan 500 m
Ontspanning:Ja - op minder dan 500 m
Restaurant:Ja - op minder dan 500 m
Dak:Plat dak
Gevel:Baksteen
Fundering:In volle grond
Beglazing:Dubbel
Elektriciteit:125 KVA

Vraag meer info aan


U moet akkoord gaan met het privacybeleid van deze website
* Verplicht in te vullen
** Eén van deze velden is verplicht in te vullen

Niet gevonden wat u zocht?

Het creatieve Lumaro Vastgoed-team vindt zeker wat u zoekt.
Schrijf u in